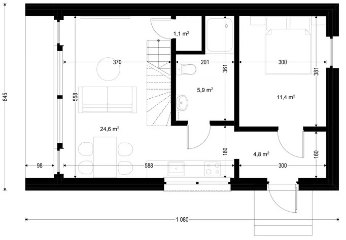
Zamislite vikendicu koja izgleda kao kuća iz arhitektonskog magazina – a pritom je energetski efikasna, održiva i montažna. Ova kuća idealna je za one koji žele da pobegnu iz grada, ali ne žele da se odreknu komfora. Sadrži dnevni boravak otvorenog tipa sa velikim prozorima, funkcionalnu kuhinju, dve spavaće sobe i moderno kupatilo. Spoljašnji izgled moguće je prilagoditi – od rustičnog drvenog stila do modernog minimalizma. Ova kuća može se lako kombinovati sa dodatnim sadržajem kao što su letnja kuhinja, sauna, ili kamin na otvorenom. Dizajnirana za odmor, ali spremna i za život.

Montažna kuća model 11
Za sva dodatna pitanja i dogovore, stojimo vam na raspolaganju. Radujemo se uspešnoj saradnji na obostrano zadovoljstvo!
Naša misija je pružiti pozitivno iskustvo klijentima uz kvalitetnu i profesionalnu uslugu. Otvoreni smo za sva vaša pitanja i predloge.







