Montažna garaža model 3

Praktično rešenje za siguran prostor – montažna garaža po vašoj meri

Naša montažna garaža predstavlja brzo, pouzdano i estetski dopadljivo rešenje za zaštitu vašeg vozila i alata. Sa savremenim dizajnom i kvalitetnim materijalima, lako se uklapa u svaki ambijent – bilo da je u pitanju dvorište, vikendica ili poslovni prostor.

Brza montaža, dug vek trajanja i minimalno održavanje čine ovu garažu idealnim izborom za sve koji žele funkcionalan prostor bez komplikovane gradnje. Personalizujte je po dimenzijama, bojama i dodacima – i dobijte prostor koji vam zaista koristi.

Izgled objekta

Slike objekta

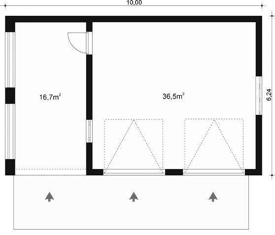
Prostorni plan

Pošaljite nam upit

Fill out this field
Please enter a valid email address.
Fill out this field

Ostvarimo saradnju

Pouzdana kompanija koji pruža brza, kvalitetna rešenja!

Za sva dodatna pitanja i dogovore, stojimo vam na raspolaganju. Radujemo se uspešnoj saradnji na obostrano zadovoljstvo!

Naša misija je pružiti pozitivno iskustvo klijentima uz kvalitetnu i profesionalnu uslugu. Otvoreni smo za sva vaša pitanja i predloge.

Pogledajte još modela: