Kada prirodni materijali, pažljiv raspored prostorija i osećaj doma stanu pod isti krov, dobijate ovu predivnu dvospratnu drvenu kuću – idealnu za porodični život, beg u prirodu ili luksuznu vikendicu. Sa dva sprata pametno osmišljena da pruže maksimalan komfor, ova kuća je pravi primer funkcionalne lepote i topline koju samo drvo može da pruži.
Prvi sprat – dnevni život sa pogledom
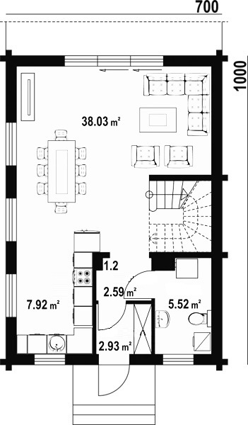
Ulaskom u kuću dočeka vas mali hodnik, koji nenametljivo vodi u dnevnu sobu – centralni deo prizemlja gde se svakodnevica pretvara u uživanje. Povezana sa trpezarijom i kuhinjom, ova celina odiše prostranošću i svetlošću, savršena za zajedničke trenutke, kuvanje i odmor. Na istom nivou nalazi se i moderno opremljeno kupatilo, dok natkrivena terasa predstavlja produžetak dnevnog boravka – idealna za jutarnju kafu, večernja okupljanja ili posmatranje prirode tokom svih godišnjih doba.
Gornji sprat – privatna zona mira i luksuza
Drvene stepenice vode na sprat, gde se nalazi noćna zona sa tri komforne spavaće sobe, namenjene odmoru, tišini i ličnom prostoru svakog člana domaćinstva. Hodnik koji povezuje sobe vodi do prostranog kupatila sa ugrađenim džakuzijem – detalja koji pretvara svakodnevno tuširanje u trenutke relaksacije i uživanja. Ovaj sprat nudi dovoljno mesta za celu porodicu, goste ili čak organizaciju radne sobe ili dečijeg kutka, u skladu sa potrebama.









