Drvena kuća model 4

Ova prelepa dvospratna drvena kuća, pažljivo projektovana da spoji prirodni ambijent sa savremenim potrebama života, predstavlja idealan izbor za porodice koje žele svoj kutak mira i funkcionalnosti. Sa jasno podeljenim dnevnim i noćnim zonama, površinski i prostorno optimizovana, ova kuća nudi sve što je potrebno za kvalitetan i opušten život – bilo da se koristi kao stalni dom, vikendica ili planinsko utočište.

Prvi sprat – svakodnevica sa pogledom
Na donjoj etaži nalazi se prostrana dnevna soba, savršena za porodična okupljanja, opuštanje i uživanje. Povezana je sa trpezarijom i kuhinjom, stvarajući topao, otvoreni prostor koji diše zajedno sa drvenom konstrukcijom i prirodnim svetlom. Tu je i kupatilo, kao i pomoćna prostorija idealna za veš, ostavu ili kućne aparate. Dnevna zona se izliva na veliku terasu, koja postaje omiljeno mesto za jutarnju kafu, večernja druženja ili jednostavno uživanje u pogledu i tišini prirode.

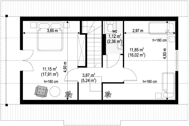
Gornji sprat – mirna privatnost
Drvene stepenice vode na sprat gde se nalaze dve prostrane spavaće sobe, osmišljene za potpuni komfor i miran san. Svaka soba nudi dovoljno prostora za bračni krevet, ormare, radne stolove ili dodatni nameštaj. Na spratu se nalazi i dodatni toalet, praktično smešten u okviru hodnika koji povezuje sve prostorije, čineći gornji nivo potpuno funkcionalnim i nezavisnim od donje etaže.

Izgled objekta

Slike objekta

Prostorni plan

Pošaljite nam upit

Fill out this field
Please enter a valid email address.
Fill out this field

Ostvarimo saradnju

Pouzdana kompanija koji pruža brza, kvalitetna rešenja!

Za sva dodatna pitanja i dogovore, stojimo vam na raspolaganju. Radujemo se uspešnoj saradnji na obostrano zadovoljstvo!

Naša misija je pružiti pozitivno iskustvo klijentima uz kvalitetnu i profesionalnu uslugu. Otvoreni smo za sva vaša pitanja i predloge.

Pogledajte još modela: