Zamišljena kao savršen spoj topline prirodnog materijala i savremenog komfora, ova drvena kuća na dva sprata idealna je kao porodično utočište, vikendica ili stalni dom za one koji sanjaju o životu bliže prirodi. Svojim pažljivo osmišljenim rasporedom, kuća pruža maksimalnu iskoristivost prostora, dok drvena konstrukcija donosi neponovljiv osećaj topline, udobnosti i harmonije.
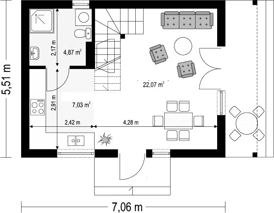
Prizemlje – srce kuće
U prizemlju se nalazi prostrana dnevna soba, povezana sa trpezarijom i kuhinjom, u kojoj svaki zajednički trenutak dobija dodatnu vrednost. Otvoreni plan omogućava protok svetlosti i vazduha, stvarajući prijatan ambijent za svakodnevni život. Tu je i moderno opremljeno kupatilo, diskretno uklopljeno u raspored bez narušavanja prostranosti. Elegantne drvene stepenice vode ka gornjoj etaži, postavljene tako da prirodno postaju deo enterijera.
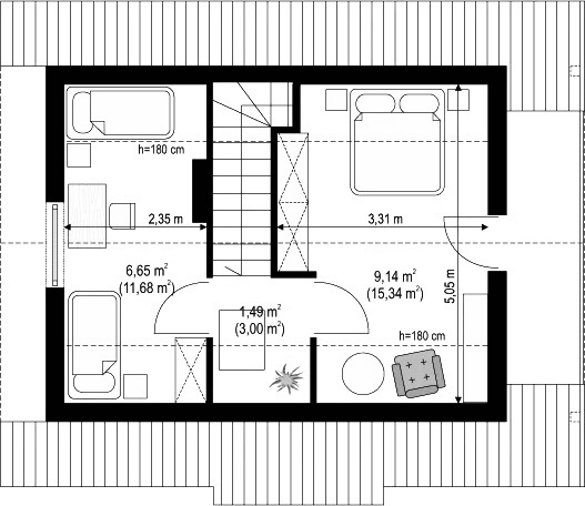
Sprat – privatna oaza
Na spratu se nalaze dve komforne spavaće sobe, idealne za odmor, san i mir. Bilo da su namenjene članovima porodice, gostima ili kao dečije sobe, svaka odiše tišinom i intimnošću. Centralni hodnik povezuje sve prostorije, omogućavajući logičan i udoban pristup bez gubitka prostora.









