Drvena kuća model 2

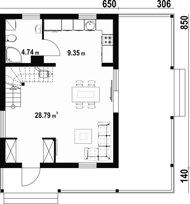
Kuća u drvenoj skeletnoj konstrukciji. U prizemlju se nalaze dnevna soba sa kuhinjom, kaminom, izlazom na veliku, natkrivenu terasu, kao i kupatilo. U potkrovlju su tri sobe, toalet, hodnik i balkon koji je dostupan iz dve sobe. Kompaktna forma objekta i dvovodni krov omogućavaju brzu i jeftinu izgradnju, kao i niske troškove eksploatacije.

Izgled objekta

Slike objekta

Prostorni plan

Pošaljite nam upit

Fill out this field
Please enter a valid email address.
Fill out this field

Ostvarimo saradnju

Pouzdana kompanija koji pruža brza, kvalitetna rešenja!

Za sva dodatna pitanja i dogovore, stojimo vam na raspolaganju. Radujemo se uspešnoj saradnji na obostrano zadovoljstvo!

Naša misija je pružiti pozitivno iskustvo klijentima uz kvalitetnu i profesionalnu uslugu. Otvoreni smo za sva vaša pitanja i predloge.

Pogledajte još modela: