Ova elegantna dvospratna drvena kuća predstavlja savršen spoj funkcionalne organizacije prostora i prirodne estetike. Namenjena onima koji žele da žive ili odmaraju u ambijentu koji diše zajedno s prirodom, kuća nudi prostranost, udobnost i jasno odvojene dnevne i privatne zone – sve to u toplom drvenom okruženju koje pruža osećaj sigurnosti i mira.
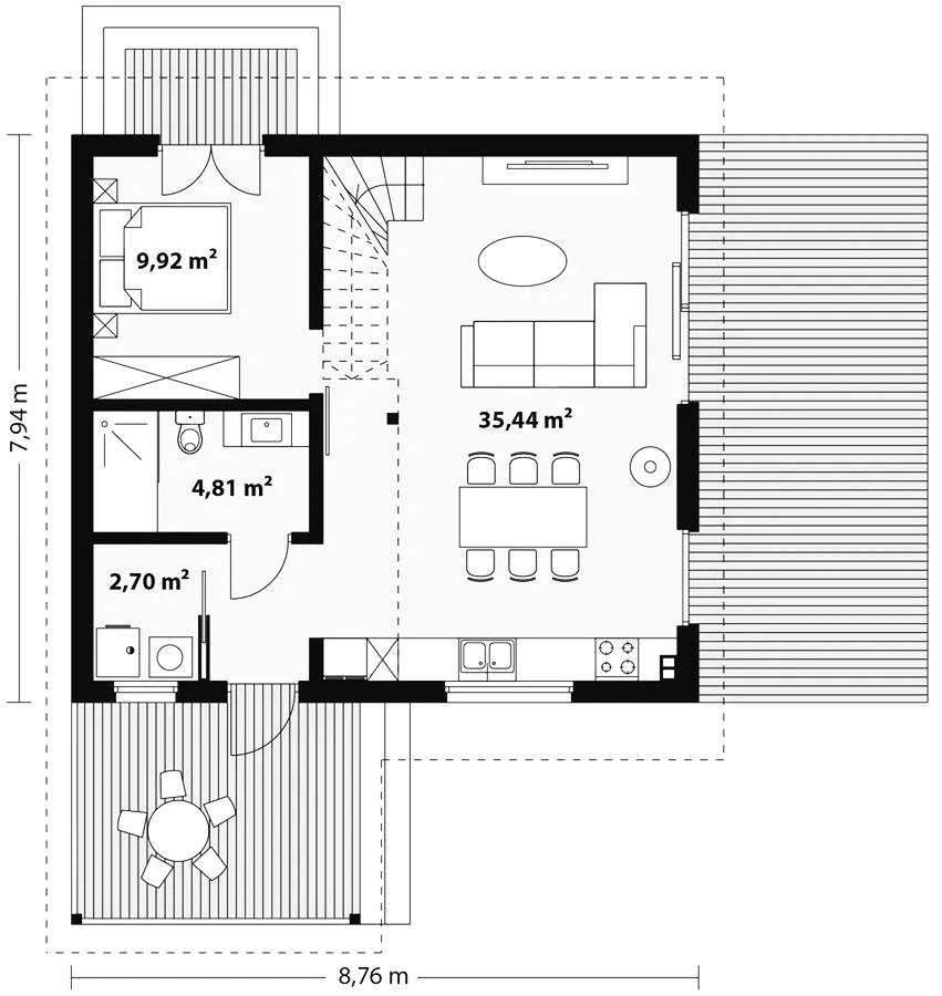
Prvi sprat – otvoren prostor i praktičnost svakodnevice
Na ulazu vas dočekuje veliki open space koji objedinjuje dnevnu sobu, trpezariju i kuhinju u jedno moderno, svetlo i prijatno središte doma. Ovaj prostor idealan je za porodična okupljanja, opuštanje i svakodnevne aktivnosti, a otvoreni raspored omogućava lakoću kretanja i vizuelnu povezanost celog enterijera.
Iz centralnog prostora vodi hodnik koji povezuje sve ostale prostorije: vešernicu, funkcionalno kupatilo i jednu spavaću sobu, savršenu kao glavna ili gostinska soba. Hodnik se takođe nastavlja ka izlazu na terasu, koja predstavlja idealno mesto za uživanje na otvorenom.
Drugi sprat – mirna zona za povlačenje i inspiraciju
Na spratu se nalazi dodatna spavaća soba, osmišljena kao mirno utočište za odmor, ali i kao prostor za lične trenutke. U okviru ove sobe nalazi se i posebno izdvojen kutak za čitanje i relaksaciju – savršen za one koji vole tišinu, introspektivu i spokojnu atmosferu.
Sa skladnim rasporedom prostorija i prirodnim materijalima, ova kuća nije samo estetski lepa, već i izuzetno funkcionalna. Idealna je kao porodični dom, vikendica ili mirno utočište van grada. Drvo unosi toplinu u svaki kutak, dok dvospratna struktura omogućava jasan razgraničen životni ritam između zajedničkog i privatnog prostora.









