Ušuškana u prirodnom ambijentu, ova jednospratna drvena kuća donosi savršen balans između topline rustičnog materijala i udobnosti savremenog života. Sa pažljivo osmišljenim rasporedom, idealna je za parove, manje porodice ili kao luksuzna vikend oaza.
Otvoren dnevni prostor – srce svakog doma
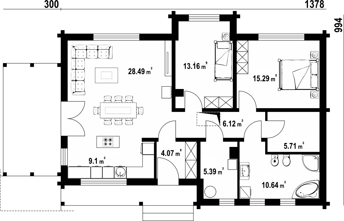
U središtu kuće nalazi se prostrani open space koji povezuje dnevnu sobu, trpezariju i kuhinju u jednu svetlu i prozračnu celinu. Ovaj otvoreni koncept omogućava prirodan protok svetlosti i energije, čineći prostor idealnim za svakodnevno opuštanje, porodične trenutke i okupljanja sa prijateljima.
Udobnost kroz pametnu organizaciju prostora
Sve prostorije povezane su centralnim hodnikom, koji olakšava kretanje i dodatno doprinosi uređenosti doma. Dve udobne spavaće sobe nude miran kutak za odmor, dok kupatilo sa džakuzijem pruža dodatnu dozu luksuza i relaksacije – pravo malo spa iskustvo u vašem domu.
Tu su i dve pomoćne prostorije, savršene za vešernicu, ostavu ili kao tehnički prostor, koje čine svakodnevni život lakšim i organizovanijim.
Dvostruka terasa za dvostruki užitak
Posebnu draž ovoj kući daju dve terase – pažljivo pozicionirane kako biste mogli uživati u različitim delovima dana, bilo da je reč o jutarnjoj tišini, ručku na otvorenom ili večernjem predahu pod zvezdama. Terase dodatno proširuju životni prostor i brišu granicu između enterijera i prirode.
Ova kuća nije samo mesto za život – to je prostor u kojem se duh prirode spaja sa svakodnevnim komforom. Drvena konstrukcija donosi toplinu, trajnost i prirodan balans, dok pametno raspoređene prostorije obezbeđuju maksimalnu funkcionalnost bez ijednog izgubljenog kvadrata.









