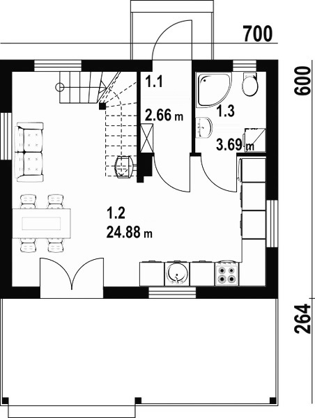
Kuća u drvenoj skeletnoj konstrukciji. U prizemlju se nalazi dnevna soba sa kaminom, stepeništem koje vodi u potkrovlje i izlazom na veliku, natkrivenu terasu. Kuhinja je povezana sa hodnikom, a tu su i pomoćna prostorija i kupatilo. U potkrovlju se nalaze dve sobe i hodnik. Kompaktna forma objekta i dvovodni krov omogućavaju brzu i jeftinu izgradnju, kao i niske troškove održavanja.

Drvena kuća model 1
Za sva dodatna pitanja i dogovore, stojimo vam na raspolaganju. Radujemo se uspešnoj saradnji na obostrano zadovoljstvo!
Naša misija je pružiti pozitivno iskustvo klijentima uz kvalitetnu i profesionalnu uslugu. Otvoreni smo za sva vaša pitanja i predloge.








